レジディア御茶ノ水の賃貸・空室情報

レジディア御茶ノ水は、都心の利便性と落ち着いた住環境を兼ね備えた高品質高級賃貸マンションです。御茶ノ水エリアは、オフィス街と学生街が融合する活気ある街でありながら、神田川や緑豊かなスポットも点在する住みやすい環境が魅力です。本物件は、交通アクセスの良さに加え、洗練されたデザインと充実した設備が整っており、シングルからDINKS層まで幅広いニーズに対応しています。
 (外観)  (外観)
レジディア御茶ノ水 (風呂)イメージ
レジディア御茶ノ水 (外観)イメージ
レジディア御茶ノ水メールBOX,宅配BOX (内装)イメージ
レジディア御茶ノ水エレベーター (内装)イメージ
レジディア御茶ノ水駐車場イメージ
レジディア御茶ノ水駐輪場イメージ
レジディア御茶ノ水エントランス (外観)イメージ
レジディア御茶ノ水バルコニーイメージ
レジディア御茶ノ水 (内装)イメージ
レジディア御茶ノ水イメージ
レジディア御茶ノ水イメージ
レジディア御茶ノ水 (玄関)イメージ
レジディア御茶ノ水イメージ
レジディア御茶ノ水 (外観)イメージ
レジディア御茶ノ水 (居間)イメージ
レジディア御茶ノ水エントランス (外観)イメージ
レジディア御茶ノ水 (内装)イメージ
レジディア御茶ノ水 (内装)イメージ
レジディア御茶ノ水メールBOX (内装)イメージ
レジディア御茶ノ水 (玄関)イメージ
レジディア御茶ノ水イメージ
レジディア御茶ノ水 (風呂)イメージ
レジディア御茶ノ水イメージ
レジディア御茶ノ水イメージ
レジディア御茶ノ水 (キッチン)イメージ
  • 賃料
    15.8万円 ~ 23.5万円
  • 種別
    マンション
  • 間取
    1R ~ 1LDK
  • 所在地
    東京都文京区湯島3丁目  レジディア御茶ノ水
  • 交通
    東京メトロ銀座線 末広町駅 徒歩5分
    JR総武線 御茶ノ水駅 徒歩8分

物件詳細

築年月
2005/09
建物階数
地上17階 
総戸数
80戸
建物構造
SRC
延べ床面積
3674.78m²
駐車場
30,000円  機械式,月額30,000円(税別),敷金1ヶ月,※最新の駐車場ご利用料金、空き状況やその他詳細情報につきましては直接管理会社へお問い合わせください。
管理形態
全部委託  管理人日勤 
物件番号
1364
取引態様
仲介
状態
空有
更新日
2026-03-23
周辺環境
校区(湯島小学校 本郷台中学校 )
設備・条件
楽器不可 ペット相談可 保証人不要 敷金礼金0 角部屋 リノベーション ガスコンロ ごみ出し24時間OK 浴室乾燥機 CATV CSアンテナ BSアンテナ 光ファイバー 地デジ対応 インターネット有 オートロック TVドアホン 防犯カメラ 宅配ボックス 内廊下 駐車場有 駐輪場 バイク置き場 バルコニー デザイナーズ
公営水道,都市ガス,オートバス,システムキッチン,シューズボックス,ディンプルキー,ダブルロックキー,24時間有人管理,24時間セキュリティシステム,耐震構造(新耐震基準適合),陽当り良好,IT重説,小型犬可,猫可,多頭飼い不可,住まい探し特典あり

※各種情報と現状に差異がある場合は、現状優先となります。
※取り扱い不動産会社が複数ある場合は、住宅保険等、一部条件が異なる場合もございますので、取扱店舗までご確認下さいませ。

周辺地図

Loading...

入居可能な部屋

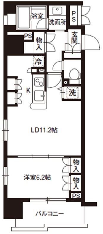
間取り図賃料22万円 敷金/礼金敷金22万円 礼金22万円 他費用共益(管理)費20,000円
 画像間取/面積1LDK
44.08m²
バルコニー保険/保証会社/保証金要(2.15万円2年) 必須(初回保証料:総賃料の40%から ※詳細はお問合せください)
現況空家引渡/入居即時 部屋階数5階部屋向き
間取り図賃料15.8万円 敷金/礼金敷金0 礼金0他費用共益(管理)費20,000円
 画像間取/面積1R
33.12m²
バルコニー保険/保証会社/保証金要(2.15万円2年) 必須(初回契約時:40%、更新時:10000円、月額:1000円)
現況空家引渡/入居期日指定 2026年4月 中旬部屋階数8階部屋向き
間取り図賃料19.9万円 敷金/礼金敷金19.9万円 礼金19.9万円 他費用共益(管理)費20,000円
 画像間取/面積1DK
35.7m²
バルコニー保険/保証会社/保証金要 必須(初回契約時:40%、更新時:10,000円、月額:1,000円、※保証会社の更新は1年毎となります)
現況居住中引渡/入居期日指定 2026年6月 上旬部屋階数8階部屋向き
間取り図賃料23.5万円 敷金/礼金敷金23.5万円 礼金23.5万円 他費用共益(管理)費20,000円
 画像間取/面積1LDK
43.85m²
バルコニー保険/保証会社/保証金
現況居住中引渡/入居期日指定 2026年05月 中旬 部屋階数16階部屋向き

条件の似た物件このページの先頭へ戻る

  • ピアース文京小石川ピアース文京小石川東京メトロ丸ノ内線後楽園駅
  • パークコート文京小石川ザ・タワーパークコート文京小石川ザ・タワー都営三田線春日駅
  • パークリュクス本郷パークリュクス本郷東京メトロ丸ノ内線本郷三丁目駅
  • パークコート本郷真砂パークコート本郷真砂東京メトロ丸ノ内線本郷三丁目駅

物件問い合わせ先

お電話からのご予約・お問い合わせ
TEL 03-6304-2731
営業時間 10:00~19:00

「レジディア御茶ノ水」の特徴

都心主要エリアへダイレクトアクセス可能な立地

  • JR中央線・総武線「御茶ノ水」駅 徒歩圏内
  • 東京メトロ丸ノ内線「御茶ノ水」駅 利用可能
  • 東京メトロ千代田線「新御茶ノ水」駅 徒歩圏内
  • 秋葉原駅・神田駅も徒歩または自転車圏内

レジディア御茶ノ水は、複数路線が交差する交通利便性の高いエリアに位置しており、日々の通勤・通学を快適にする理想的なロケーションです。JR中央線・総武線を利用すれば新宿や東京方面へスムーズにアクセスでき、東京メトロ丸ノ内線や千代田線を活用することで大手町や霞ヶ関といったビジネス街へも短時間で移動可能です。これにより、都内の主要拠点へダイレクトまたは乗り換え少なく移動できる点は大きな魅力となっています。また、秋葉原や神田といった商業・オフィスエリアも徒歩圏内にあり、生活圏の広がりを実感できる立地です。さらに、複数路線を使い分けることで、電車遅延時のリスク分散にもつながり、日々の移動ストレスを軽減できる点も見逃せません。都心でのアクティブなライフスタイルを支える優れた交通アクセスが、本物件の大きな強みとなっています。

落ち着きと利便性が共存する御茶ノ水エリア

  • 文教地区ならではの落ち着いた街並み
  • 飲食店・カフェ・コンビニが充実
  • 神田川沿いの自然環境
  • 医療機関が豊富で安心

御茶ノ水エリアは、大学や専門学校が多く集まる文教地区として知られ、街全体に知的で落ち着いた雰囲気が漂っています。その一方で、生活に必要な施設がバランスよく整っており、非常に住みやすい環境が形成されています。周辺には多彩な飲食店やカフェが点在し、外食やちょっとした休憩にも困ることはありません。さらに、コンビニやドラッグストアなどの生活利便施設も充実しており、日常の買い物もスムーズに行えます。また、神田川沿いには散策を楽しめる遊歩道が整備されており、都心にいながら自然を感じられる点も魅力の一つです。加えて、大学病院やクリニックが近隣に多く、医療体制が整っているため、万が一の際にも安心して生活できます。利便性と静けさを兼ね備えたこのエリアは、長く住み続けたいと感じさせる魅力にあふれています。

洗練された外観と上質な住空間

  • スタイリッシュな外観デザイン
  • 高級感のあるエントランス
  • 機能性とデザイン性を兼ねた室内
  • 多様な間取りプラン

レジディア御茶ノ水は、都市型マンションらしい洗練された外観デザインが印象的で、周囲の街並みに調和しつつも存在感を放つ建物です。エントランスや共用部分には上質な素材や落ち着いた色調が採用されており、居住者や来訪者に高級感と安心感を与えます。室内空間においても、機能性とデザイン性のバランスが取れた設計が施されており、日々の生活を快適に過ごせるよう工夫されています。フローリングや建具はシンプルながらも質感の高い仕上がりとなっており、インテリアの自由度も高い点が魅力です。また、単身者向けのコンパクトな間取りから、ゆとりある1LDKタイプまで幅広いプランが用意されており、ライフスタイルに合わせた住まい選びが可能です。都市での洗練された暮らしを求める方にふさわしい住空間が整っています。

安心のセキュリティ体制

  • オートロックシステム
  • 防犯カメラ設置
  • モニター付きインターホン
  • 管理体制の行き届いた共用部

都心での生活において重要視されるセキュリティ面についても、レジディア御茶ノ水は十分な配慮がなされています。エントランスにはオートロックシステムが導入されており、不審者の侵入を未然に防ぐ仕組みが整っています。さらに、防犯カメラが共用部に設置されていることで、日常的な安心感を高めています。各住戸にはモニター付きインターホンが設置されており、訪問者の顔を確認してから対応できるため、セキュリティ意識の高い方にも安心です。また、共用部の管理や清掃が行き届いている点も重要で、常に清潔で整った環境が維持されています。こうした設備と管理体制により、単身者や女性の一人暮らしでも安心して生活できる環境が整っており、快適で安全な都市生活を実現しています。

快適な都心生活を支える生活利便性

  • スーパー・コンビニが徒歩圏内
  • 秋葉原・神田エリアの商業施設利用可能
  • 金融機関・郵便局が近隣に充実
  • 生活に必要な施設が揃う環境

レジディア御茶ノ水の周辺は、日常生活を快適に支えるための施設が非常に充実しています。徒歩圏内にはスーパーやコンビニが複数あり、忙しい日々の中でも効率よく買い物を済ませることができます。また、秋葉原や神田といったエリアが近いため、大型商業施設や家電量販店、飲食店街なども気軽に利用でき、生活の幅が広がります。さらに、銀行や郵便局などの金融機関も近隣に点在しており、各種手続きや用事もスムーズにこなせる環境です。こうした利便性の高さは、時間を有効活用したいビジネスパーソンにとって大きなメリットとなります。加えて、生活インフラが整っていることで、初めての一人暮らしでも安心して新生活をスタートできる点も魅力です。都市生活の快適さを実感できるロケーションといえるでしょう。

「レジディア御茶ノ水」の物件設備

専有部の設備

  • システムキッチン(ガスコンロ)
  • 浴室乾燥機
  • 独立洗面台
  • 温水洗浄便座
  • エアコン
  • クローゼット・収納スペース
  • フローリング
  • 室内洗濯機置場
  • TVモニター付きインターホン

レジディア御茶ノ水の専有部は、都心生活に求められる快適性と機能性を兼ね備えた設備が充実しています。キッチンにはガスコンロ付きのシステムキッチンが採用されており、自炊をする方にとって使い勝手の良い設計となっています。調理スペースや収納も確保されているため、日常的に料理を楽しみたい方にも適しています。また、浴室には浴室乾燥機が設置されており、雨の日でも洗濯物を乾かすことができるほか、カビの発生を抑える効果も期待できます。独立洗面台や温水洗浄便座といった水回り設備も整っており、清潔で快適な生活をサポートします。さらに、エアコン完備により一年を通して室内環境を快適に保つことができ、収納スペースもクローゼットなどが設けられているため、荷物の整理もしやすい設計です。モニター付きインターホンにより来訪者の確認もでき、防犯面でも安心できる住空間が整っています。

共有部の設備

  • オートロック
  • 防犯カメラ
  • エレベーター
  • 宅配ボックス
  • メールボックス
  • 敷地内ゴミ置き場

共用部には、都心での生活をより安全かつ快適にするための設備がしっかりと整備されています。エントランスにはオートロックが設置されており、外部からの不審者の侵入を防ぐ仕組みが整っています。加えて、防犯カメラも設置されているため、建物全体のセキュリティレベルが高く、安心して生活することができます。エレベーターが設置されていることで、上階への移動もスムーズで、荷物が多い日でもストレスを感じることはありません。また、宅配ボックスがあることで、不在時でも荷物の受け取りが可能となり、忙しい方にとって非常に便利です。メールボックスや敷地内ゴミ置き場も使いやすい位置に配置されており、日常生活の動線が考慮された設計となっています。こうした共用設備の充実により、快適でストレスの少ない暮らしが実現されています。

サービス

  • インターネット対応
  • 管理会社による巡回管理
  • 24時間サポート(物件により異なる)

レジディア御茶ノ水では、日々の暮らしをより安心で快適なものにするための各種サービスも提供されています。インターネット対応の環境が整っているため、テレワークやオンライン学習などにもスムーズに対応でき、現代のライフスタイルに適した住環境が構築されています。また、管理会社による巡回管理が行われており、共用部の清掃や設備点検が定期的に実施されることで、常に清潔で整った環境が維持されています。さらに、物件によっては24時間サポートサービスが利用可能で、水回りのトラブルや設備不具合など、急な問題にも迅速に対応してもらえる体制が整っています。こうしたサービスの充実により、入居者は日常の不安を軽減し、安心して長く住み続けることができる環境が提供されています。

その他の特徴設備

  • 複数路線利用可能な立地設備
  • 都市型マンションならではの高機能設備
  • 単身者・DINKS向け設計
  • 生活動線を意識した間取り構成

本物件は、設備面においても都市型マンションとしての魅力が随所に見られます。単に設備が充実しているだけでなく、住む人のライフスタイルを意識した設計がなされている点が特徴です。単身者やDINKS層をターゲットにした間取りが多く、限られた空間を有効活用できるよう工夫されています。生活動線も考慮されており、キッチン・水回り・収納の配置が効率的で、日々の家事や生活がスムーズに行える設計となっています。また、都市部での生活に適した高機能設備が整っているため、忙しい日常の中でも快適さを損なうことなく過ごすことができます。さらに、複数路線が利用可能な立地そのものも大きな“設備”といえる要素であり、生活の利便性を大きく高めています。こうした総合的な設備力が、レジディア御茶ノ水の大きな魅力となっています。

「レジディア御茶ノ水」の周辺環境

交通アクセス

  • JR中央線・総武線「御茶ノ水」駅 徒歩圏内
  • 東京メトロ丸ノ内線「御茶ノ水」駅 利用可能
  • 東京メトロ千代田線「新御茶ノ水」駅 徒歩圏内
  • 秋葉原駅・神田駅も徒歩または自転車圏内

レジディア御茶ノ水の大きな魅力の一つが、優れた交通アクセス環境です。最寄りとなる御茶ノ水駅にはJR中央線・総武線が乗り入れており、新宿や東京といった都内主要エリアへダイレクトにアクセスできます。また、東京メトロ丸ノ内線や千代田線も利用可能で、大手町・霞ヶ関・表参道などのビジネス・商業エリアへもスムーズに移動可能です。さらに、徒歩や自転車で秋葉原や神田エリアへもアクセスできるため、生活圏が広く、通勤だけでなくプライベートでも利便性の高さを実感できます。複数路線が利用できることで、電車の遅延時にも代替ルートを選択できる点は都心生活において大きな安心材料となります。移動の自由度が高く、日々の行動範囲を大きく広げてくれる交通環境が整っています。

飲食・商業施設

  • コンビニ・スーパーが徒歩圏内に複数あり
  • 秋葉原の大型商業施設・家電量販店
  • 神田エリアの飲食店街
  • カフェやベーカリーも豊富

周辺には日常生活を支える商業施設が豊富に揃っており、非常に利便性の高い環境が整っています。徒歩圏内にはコンビニやスーパーが複数あり、日々の買い物に困ることはありません。また、秋葉原エリアが近いため、大型商業施設や家電量販店、ファッションビルなども気軽に利用でき、ショッピングの選択肢が広がります。さらに、神田エリアには歴史ある飲食店から新しいトレンド店まで多種多様な飲食店が集まっており、外食の楽しみも豊富です。御茶ノ水周辺には落ち着いた雰囲気のカフェやベーカリーも多く、休日のリラックスタイムにも最適な環境です。こうした充実した商業環境により、生活の利便性だけでなく、日々の暮らしに彩りを与えてくれる点も大きな魅力といえるでしょう。

公園・自然環境

  • 神田川沿いの散策路
  • 小規模公園が点在
  • 緑を感じられる落ち着いた環境

都心に位置しながらも、レジディア御茶ノ水の周辺には自然を感じられるスポットが点在しています。特に神田川沿いは、四季折々の景色を楽しめる散策路として人気があり、日々の生活の中でリフレッシュできる貴重な空間となっています。春には桜が咲き誇り、季節の移ろいを身近に感じることができるのも魅力の一つです。また、周辺には小規模ながら整備された公園も点在しており、ちょっとした休憩や気分転換に利用することができます。こうした自然環境が身近にあることで、忙しい都心生活の中でも心にゆとりを持つことができるでしょう。都市の利便性と自然の安らぎを同時に享受できる環境は、長く快適に暮らすうえで非常に重要なポイントとなります。

教育・医療施設

  • 大学・専門学校が多数立地
  • 総合病院・クリニックが充実
  • ドラッグストアが近隣にあり便利

御茶ノ水エリアは文教地区としても知られており、周辺には大学や専門学校が数多く集まっています。そのため、街全体に落ち着いた雰囲気があり、知的で穏やかな環境が形成されています。また、医療機関も非常に充実しており、大学病院や総合病院、専門クリニックが多数点在しているため、万が一の際にも安心です。日常的な体調管理から専門的な治療まで幅広く対応できる医療体制が整っている点は、大きな安心材料といえるでしょう。さらに、ドラッグストアも近隣に複数あり、医薬品や日用品の購入もスムーズに行えます。教育と医療の両面が充実していることで、単身者はもちろん、長期的な居住を検討している方にとっても安心して暮らせる環境が整っています。

その他の周辺環境

  • 金融機関・郵便局が徒歩圏内
  • オフィス街に近く治安が比較的良好
  • 生活利便施設が充実したエリア

レジディア御茶ノ水の周辺には、生活を支えるさまざまなインフラが整っています。銀行や郵便局などの金融機関が徒歩圏内に揃っているため、各種手続きや日常的な用事を効率よく済ませることができます。また、オフィス街に近い立地であることから人通りも多く、比較的治安が良好とされている点も安心材料です。さらに、クリーニング店や各種サービス店舗なども充実しており、日常生活を快適にサポートしてくれる環境が整っています。都心ならではの利便性を享受しながらも、落ち着いた住環境が維持されている点は、このエリアならではの魅力です。生活のしやすさと安心感を兼ね備えた周辺環境が、居住者にとって大きな価値となっています。

レジディア御茶ノ水のまとめ

レジディア御茶ノ水は、都心の利便性と落ち着いた住環境を高いレベルで両立した魅力的な賃貸マンションです。複数路線が利用可能な優れた交通アクセスにより、都内主要エリアへの移動がスムーズで、通勤・通学のストレスを軽減してくれます。また、御茶ノ水という文教地区ならではの穏やかな街並みと、秋葉原・神田といった活気あるエリアを生活圏に収められる点も大きな魅力です。

さらに、室内設備や共用設備も充実しており、快適で安心できる暮らしを実現できる点は、単身者からDINKS層まで幅広いニーズに応えてくれます。周辺には商業施設や医療機関、自然環境も整っており、日々の生活利便性はもちろん、長く住み続けるうえでの安心感も兼ね備えています。

都心でのアクティブな生活を求めながらも、落ち着いた住環境で快適に暮らしたい方にとって、レジディア御茶ノ水は非常にバランスの取れたおすすめの物件といえるでしょう。

物件問合せ

レジディア御茶ノ水の詳細や空室情報については下記のフォームからお問い合せください