-
- 賃料
- 40万円 ~ 74万円
-
- 種別
- マンション
-
- 間取
- 1LDK ~ 3LDK
-
- 所在地
- 東京都港区赤坂6丁目 ストーリア赤坂
- 交通
- 東京メトロ千代田線 赤坂駅 徒歩5分
東京メトロ日比谷線 六本木駅 徒歩9分
東京メトロ南北線 六本木一丁目駅 歩13分
-
- 同じエリアの物件を探す
- 港区の高級賃貸物件一覧
東京の高級賃貸物件一覧
- 同じ路線・駅の物件を探す
- 六本木駅周辺の高級賃貸物件一覧
六本木一丁目駅周辺の高級賃貸物件一覧
赤坂駅周辺の高級賃貸物件一覧
物件詳細
|
|
|
|
|
|
|
※各種情報と現状に差異がある場合は、現状優先となります。
※取り扱い不動産会社が複数ある場合は、住宅保険等、一部条件が異なる場合もございますので、取扱店舗までご確認下さいませ。
周辺地図
入居可能な部屋
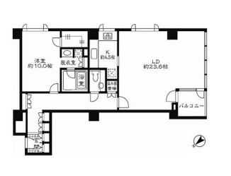
| 間取り図 | 賃料 | 48万円 | 敷金/礼金 | 敷金48万円 礼金48万円 | 他費用 | 共益(管理)費10,000円 | ||
|---|---|---|---|---|---|---|---|---|
![]() | 間取/面積 | 1LDK 70.22m² | バルコニー | 保険/保証会社/保証金 | 要 必須(オリコフォレントインシュア)賃料等の50%(最低2万)、月次保証料:賃料等の1%(更新料無) | |||
| 現況 | 空家 | 引渡/入居 | 即時 | 部屋階数 | 2階 | 部屋向き | 北 | |
| 間取り図 | 賃料 | 40万円 | 敷金/礼金 | 敷金40万円 礼金40万円 | 他費用 | 共益(管理)費10,000円 | ||
|---|---|---|---|---|---|---|---|---|
![]() | 間取/面積 | 1LDK 93.36m² | バルコニー | 保険/保証会社/保証金 | ||||
| 現況 | 居住中 | 引渡/入居 | 相談 | 部屋階数 | 3階 | 部屋向き | 南 | |
| 間取り図 | 賃料 | 74万円 | 敷金/礼金 | 敷金74万円 礼金74万円 | 他費用 | 共益(管理)費10,000円 更新料740,000円 | ||
|---|---|---|---|---|---|---|---|---|
![]() | 間取/面積 | 3LDK 105.45m² | バルコニー | 保険/保証会社/保証金 | ||||
| 現況 | 空家 | 引渡/入居 | 即時 | 部屋階数 | 2階 | 部屋向き | 北東 | |
物件問い合わせ先
ストーリア赤坂の特徴
ストーリア赤坂は、港区赤坂6丁目に所在する高級賃貸マンション・都市型レジデンスです。赤坂駅・乃木坂駅・六本木駅など複数路線・駅が利用可能な交通利便性、閑静な住宅街と都心の利便性のバランス、共用部・専有部の設備水準などが魅力とされています。
立地と交通の利便性
ストーリア赤坂は、港区赤坂六丁目という都心の中でも特に利便性の高いエリアに位置しています。東京メトロ千代田線「赤坂駅」まで徒歩5分、同じく千代田線「乃木坂駅」も徒歩5分圏内にあり、さらに日比谷線・都営大江戸線「六本木駅」へも徒歩9分という好立地。これにより、ビジネス街である霞が関・大手町・永田町方面へもスムーズにアクセスできるほか、銀座や表参道、渋谷などの人気エリアにも直結します。都市の中心にありながら、一本奥まった通りに面しているため、夜間も比較的静かで落ち着いた環境を保っています。周辺にはコンビニやスーパー、カフェ、レストランが点在しており、生活の利便性も非常に高い点が魅力です。通勤・通学・日常の買い物から休日の外出まで、あらゆるシーンで「アクセスの良さ」が実感できる立地といえるでしょう。
- 東京メトロ千代田線 「赤坂駅」 徒歩約5分
- 東京メトロ千代田線 「乃木坂駅」 徒歩約5分
- 東京メトロ日比谷線 / 都営大江戸線 「六本木駅」 徒歩約9分
- 東京メトロ銀座線・南北線 「溜池山王駅」 徒歩約10分
- バス路線や主要幹線道路へのアクセスも良好
建物概要・構造・規模
ストーリア赤坂は、地上6階・地下2階建ての鉄筋コンクリート造(RC構造)で、総戸数は約50戸の中規模レジデンスです。2003年2月に竣工し、築年数を経てもなお美しく保たれた外観と堅牢な構造が高く評価されています。白を基調としたタイル貼りの外観は、周辺の赤坂エリアの街並みに溶け込みながらも上質さを際立たせるデザイン。外観だけでなく、共用部にもこだわりが感じられ、エントランスホールは大理石調の素材が使われたホテルライクな仕上がりです。共用廊下は内廊下設計を採用しており、プライバシー性と静粛性が確保されています。また、管理体制も良好で、清掃やメンテナンスが定期的に行われているため、清潔で安心感のある住環境が維持されています。構造面では耐震性にも優れ、都心生活に安心と快適を提供する堅実な造りが魅力です。
- 地上6階・地下2階建てのRC構造
- 総戸数約50戸の中規模レジデンス
- タイル張りの美しい外観
- 大理石調のエントランスホール
- 内廊下設計によるプライバシー性と静粛性
間取り・住戸バリエーション
ストーリア赤坂の住戸プランは、1LDKから3LDKまでの幅広い間取りが用意されており、専有面積は約70㎡から最大で100㎡を超えるタイプまで揃います。単身者からファミリー層まで幅広いライフスタイルに対応し、各住戸は開放感のある間取りと採光性に優れた設計が特徴です。室内はフローリング仕様で、上質な素材感と機能性を両立。L字型やカウンター式のシステムキッチンにはIHクッキングヒーターや食器洗浄機、ディスポーザーなどの最新設備が導入されています。浴室には追焚機能や浴室乾燥機を完備し、快適なバスタイムをサポート。ウォークインクローゼットやシューズボックスなど収納スペースも豊富で、日々の暮らしをより快適にする工夫が随所に見られます。都心生活に求められる機能性と快適性を高水準で実現した間取り構成が、ストーリア赤坂の大きな魅力です。
- 1LDK~3LDKの多彩な住戸プラン
- 専有面積:70㎡~105㎡台
- IHクッキングヒーター・食洗機・ディスポーザー完備
- 浴室乾燥機・追焚機能付きバスルーム
- ウォークインクローゼットなど収納充実
セキュリティと安全性
ストーリア赤坂では、都心での生活に欠かせない「安全」と「安心」を徹底的に追求しています。エントランスにはオートロックシステムを採用し、訪問者を確認できるTVモニター付きインターホンを全戸に設置。さらに建物内外には防犯カメラを複数台設置し、24時間体制でセキュリティを強化しています。各住戸の玄関ドアにはピッキング防止に優れたディンプルキーとダブルロックを採用。敷地内は明るい照明計画が施され、夜間でも安心して出入りできる環境です。管理体制も整っており、日勤または巡回管理によって建物の安全・衛生が常に維持されています。赤坂という立地において、プライバシーと安全を両立した生活を実現できるのは、ストーリア赤坂の大きな魅力の一つです。
- オートロック・防犯カメラ完備
- ディンプルキー・ダブルロック採用
- TVモニター付きインターホンで来訪者確認可能
- 夜間も安心の照明設計
- 日勤・巡回管理による良好な管理体制
周辺環境と生活利便性
ストーリア赤坂の周辺には、日常を豊かに彩る施設が数多く揃っています。徒歩圏内には赤坂サカスや東京ミッドタウンがあり、ショッピング、グルメ、アートを身近に楽しめます。また、スーパー「マルエツプチ赤坂店」やコンビニ、ドラッグストアも徒歩数分圏内に点在し、生活の利便性が高い環境です。さらに、周辺には緑豊かな公園や文化施設があり、都心でありながら自然を感じることができます。教育・医療機関も整備されており、小学校や保育施設、クリニックが徒歩圏内に存在します。赤坂・乃木坂・六本木エリアを生活圏にできる贅沢さと、静かで落ち着いた住環境。この両立こそが、ストーリア赤坂が多くの人に選ばれる理由です。
- 赤坂サカス・東京ミッドタウンが徒歩圏内
- スーパー・コンビニ・薬局が近隣に充実
- 多彩な飲食店やカフェが周辺に多数
- 緑豊かな公園・文化施設も点在
- 教育・医療施設も徒歩圏内で安心
ストーリア赤坂の物件設備
専有部の設備
ストーリア赤坂の専有部は、分譲マンションに匹敵するほどの設備仕様が整っており、快適で上質な暮らしを実現します。全住戸に採用されたフローリングは、落ち着いた色合いと木の質感が調和し、上品な空間を演出します。キッチンにはIHクッキングヒーターを備えたシステムキッチンが設置され、食器洗浄機やディスポーザーも導入されているため、家事の効率化と清潔さを両立。広々とした作業スペースや収納棚もあり、料理好きの方にも満足度の高い設計となっています。浴室には追焚機能付きのオートバスと浴室乾燥機が完備され、快適なバスタイムをサポート。さらに、ウォシュレット付きトイレやウォークインクローゼットなど、機能性と居住性を追求した設備が随所に配置されています。断熱性・遮音性にも優れた造りとなっており、都心の中心にありながら穏やかで快適な室内環境を維持できるのが魅力です。特に、室内の開放感を重視した設計は、日々の暮らしに贅沢なゆとりをもたらします。
- フローリング仕様の上質な居室空間
- IHクッキングヒーター搭載のシステムキッチン
- ディスポーザー・食器洗浄機完備
- 浴室乾燥機・追焚機能付きオートバス
- ウォシュレット付きトイレ
- ウォークインクローゼット・シューズボックス完備
- オール電化仕様で経済的なエネルギー運用
- TVモニター付きインターホン
- ディンプルキー・ダブルロックで安心の防犯性能
共有部の設備
共有部には、居住者の安心と利便性を支える多彩な設備が整っています。エントランスはオートロックシステムと防犯カメラが設置され、外部からの不審な侵入を防止。来訪者の確認はTVモニター付きインターホンで行え、セキュリティ面は万全です。宅配ボックスが導入されているため、忙しい生活を送る入居者でも安心して荷物を受け取ることができます。また、エレベーターは複数基設置されており、朝の通勤時間帯でもスムーズな移動が可能。敷地内には24時間対応のゴミ置場が設けられ、清潔で快適な環境が維持されています。さらに駐輪場・バイク置き場・駐車場も完備され、車両を所有する方にも対応。共用ラウンジやスタディルームなど、住民同士の交流やリモートワークにも利用できる空間が整っており、都市生活における“余裕”を感じさせる設備群です。
- オートロック・防犯カメラ完備
- 宅配ボックス設置
- 複数基エレベーターによる快適な動線
- 敷地内ゴミ置場(24時間利用可能)
- 駐輪場・バイク置き場・駐車場完備(要確認)
- トランクルーム(空き状況により利用可能)
- 共用ラウンジ・スタディルームを設置
- ホテルライクなエントランスホール
サービス
ストーリア赤坂では、都心生活をより快適にするためのサービス体制も整っています。管理人による日勤または巡回管理が実施されており、建物の安全と清潔さが常に保たれています。宅配ボックスやメールコーナーが設けられており、不在時でも荷物を安心して受け取ることが可能です。さらに、防犯カメラと連動したセキュリティシステムにより、24時間体制で居住者を見守る環境が整っています。定期的な清掃や設備点検も実施され、建物全体が美しく維持されている点も魅力です。また、共用部の予約制利用(ラウンジ・スタディルームなど)も可能で、住民の利便性と快適さを両立。赤坂という都心の立地にありながら、安心して日常を過ごせる管理品質の高さは、ストーリア赤坂の大きな特徴です。
- 日勤または巡回管理による安心の管理体制
- 宅配物対応システム(宅配ボックス・メールコーナー)
- 防犯カメラと連動した24時間セキュリティ
- 定期清掃・点検による建物維持管理
- 共用施設の予約利用システム
その他の設備・仕様
ストーリア赤坂の設備面では、細部にまで快適性と安全性への配慮が行き届いています。各住戸には高遮音性のサッシを採用し、外部の騒音を効果的に遮断。都心でありながらも落ち着いた住空間を確保しています。さらに、各住戸の玄関には防犯性の高いディンプルキーが採用され、セキュリティ性能を強化。共用廊下や駐車場には防犯カメラが多数設置されており、居住者の安心を支えます。また、敷地内には緑地や植栽が配置され、都市の中にも自然の潤いを感じられるデザインに。24時間対応のゴミステーション、充実したエアコン設備、バルコニーの採光性など、快適に過ごすための工夫が随所に見られます。こうした細部へのこだわりが、「住む人のことを第一に考えた設計思想」として高く評価されている理由です。
- 高遮音性サッシによる静音設計
- ディンプルキー・防犯カメラで安全性を確保
- 緑地・植栽による癒しの外構デザイン
- 24時間利用可能なゴミ置場
- 各住戸に冷暖房完備
- バルコニー付きで採光性・通風性良好
ストーリア赤坂の周辺環境
交通アクセス
ストーリア赤坂は、港区の中心部・赤坂六丁目という抜群のロケーションに位置し、交通利便性の高さが際立つ物件です。最寄り駅の東京メトロ千代田線「赤坂駅」までは徒歩5分、同じく千代田線「乃木坂駅」へも徒歩5分と近く、さらに東京メトロ日比谷線・都営大江戸線の「六本木駅」までは徒歩9分という好立地です。加えて、銀座線・南北線「溜池山王駅」も徒歩10分圏内に位置しており、主要ビジネスエリアへのアクセスが非常にスムーズ。千代田線を使えば「表参道」や「大手町」、日比谷線を使えば「銀座」や「恵比寿」などへもダイレクトに移動できます。通勤・通学はもちろん、休日のお出かけにもストレスのないアクセスが実現。さらに、近隣には都営バスやコミュニティバスの停留所もあり、渋谷・新橋方面への移動も容易です。都心の主要ターミナル駅にダイレクトアクセスできる利便性と、徒歩圏内に複数路線が揃う希少な立地環境こそ、ストーリア赤坂の大きな強みといえるでしょう。
- 東京メトロ千代田線「赤坂駅」 徒歩約5分
- 東京メトロ千代田線「乃木坂駅」 徒歩約5分
- 東京メトロ日比谷線・都営大江戸線「六本木駅」 徒歩約9分
- 東京メトロ銀座線・南北線「溜池山王駅」 徒歩約10分
- 渋谷・新橋方面への都営バス路線も利用可能
飲食・商業施設
赤坂といえば、都内でも屈指のグルメエリア。ストーリア赤坂の周辺には、老舗の料亭や高級レストラン、カジュアルなダイニング、隠れ家的なカフェまで、多彩な飲食店が軒を連ねています。徒歩圏内には「赤坂サカス」や「東京ミッドタウン」などの大型商業施設があり、ショッピング・グルメ・カルチャーを一度に楽しめる贅沢な環境が整っています。日常使いの店舗としては、「マルエツプチ赤坂店」「ローソン赤坂九丁目店」「セブンイレブン赤坂六丁目店」などがあり、日々の買い物も非常に便利。さらに、「東京ミッドタウン」内には高品質なデリ・ベーカリー・スーパーマーケットも併設されており、上質な食生活を求める方にも理想的です。深夜営業の飲食店や24時間営業のコンビニも充実しており、都心ならではの利便性を最大限に享受できます。都会の中心で、生活のあらゆるシーンを豊かに彩る魅力的な商業環境が広がっています。
- 赤坂サカス・東京ミッドタウンが徒歩圏内
- マルエツプチ赤坂店(スーパー) 徒歩数分
- セブンイレブン・ローソンなどコンビニ複数
- 老舗料亭・高級レストラン・カフェが充実
- 深夜営業店舗やテイクアウト専門店も多数
公園・自然環境
都心の中でも赤坂は、緑と静けさを兼ね備えた街として知られています。ストーリア赤坂の周辺には、四季折々の自然が感じられるスポットが点在しており、都会の喧騒を忘れさせてくれる環境が整っています。徒歩圏内には「檜町公園」や「乃木公園」があり、朝のジョギングや犬の散歩、休日のリラックスタイムに最適。特に東京ミッドタウンに隣接する檜町公園は、緑豊かな芝生広場や池を備え、都心とは思えないほど穏やかな雰囲気に包まれています。また、六本木ヒルズ方面に足を延ばせば「毛利庭園」や「有栖川宮記念公園」といった緑のオアシスにもアクセス可能。マンション敷地内にも植栽が丁寧に施され、建物周囲には季節の花や樹木が配置されています。都市の中心にありながら自然と共存するロケーションは、心の豊かさを重視する方にとっても大きな魅力です。
- 檜町公園(東京ミッドタウン隣接) 徒歩約7分
- 乃木公園 徒歩約5分
- 毛利庭園・有栖川宮記念公園へもアクセス良好
- 敷地内および周辺に緑地・植栽あり
- 自然を感じる静かな街並み
教育・医療施設
ストーリア赤坂は、教育・医療環境の充実したエリアに立地しています。近隣には港区立赤坂小学校をはじめ、私立・インターナショナルスクールなど教育機関が充実。都心に勤務するファミリー層にも人気の理由の一つです。また、周辺には複数の保育園や幼稚園があり、共働き世帯にも優しい環境が整っています。医療面では、赤坂エリアには「山王病院」「東京ミッドタウンクリニック」など、先進的な医療機関が揃っており、健康面でも安心です。加えて、地域のクリニックや歯科医院も徒歩圏内に多数点在し、日常的な診療にも対応。赤坂という都心の立地でありながら、子育てから医療まで一貫して安心できる生活基盤が整っている点は、長期的な居住を考える上でも大きな魅力といえます。
- 港区立赤坂小学校 徒歩約7分
- インターナショナルスクールや私立校も通学圏内
- 保育園・幼稚園が周辺に複数
- 山王病院・東京ミッドタウンクリニックが近隣
- 一般クリニック・歯科・薬局も徒歩圏内
文化・生活の魅力
赤坂は、ビジネスと文化が融合する街。ストーリア赤坂の周辺には、アートギャラリー、音楽ホール、劇場といった文化施設が多数点在しています。赤坂サカス内の「赤坂ACTシアター」では、国内外の舞台公演やコンサートが開催され、日常的に芸術文化に触れることができます。また、「国立新美術館」や「サントリー美術館」も徒歩圏内に位置しており、感性を刺激する豊かな時間を過ごすことが可能。さらに、赤坂エリアは各国の大使館が多く、国際色豊かな街としても知られています。街並みには洗練された雰囲気が漂い、レストランやカフェでも異文化を感じられるのが特徴です。日常の中にアートや異文化が自然に溶け込む街、それが赤坂。ストーリア赤坂に暮らすことは、まさに“文化と都市の交差点”に住まうという贅沢を手にすることにほかなりません。
- 赤坂ACTシアター・TBS赤坂BLITZ(赤坂サカス内)
- 国立新美術館・サントリー美術館 徒歩圏内
- 各国大使館が点在する国際的な街並み
- アートギャラリーやライブハウスも充実
- 洗練された文化と感性が息づくエリア
まとめ
ストーリア赤坂は、都心・港区赤坂という羨望の地にありながら、静寂と上質を兼ね備えた希少なレジデンスです。千代田線・日比谷線・大江戸線・南北線といった複数路線が利用でき、赤坂・乃木坂・六本木・溜池山王といった名だたる駅をすべて徒歩圏に収める圧倒的な交通利便性を誇ります。その一方で、一本奥まった通りに面した立地は、都心にありながら穏やかな時間が流れる“隠れ家のような静けさ”をもたらします。外観はタイル張りの洗練されたデザインで、建物内部はホテルライクな共用空間と、分譲マンション並みの設備を備えた専有部が織りなす高級感に満ちています。ディスポーザー、食器洗浄機、浴室乾燥機などの最新設備が快適な暮らしを支え、オートロック・防犯カメラ・ディンプルキーといった堅牢なセキュリティが安心を保証します。
赤坂サカスや東京ミッドタウンなど、都内屈指の商業エリアが徒歩圏にあり、ショッピングやグルメ、カルチャー体験が日常の延長に存在する贅沢な生活。檜町公園や乃木公園など、自然と触れ合えるスポットも身近にあり、都市の中で心の安らぎを感じることができます。教育・医療機関も整っており、ファミリー層からシングル、外国人エグゼクティブまで、多様なライフスタイルに応える柔軟な設計が施されています。
ストーリア赤坂に暮らすということは、単に“住む”という行為を超え、日常そのものを豊かにデザインするという選択です。都心の利便性と静謐な住環境、そして建築の美学が見事に調和したこの邸は、まさに都市生活の理想形と呼ぶにふさわしい存在。赤坂という洗練と歴史が交差する街の中で、自分だけの時間と空間を楽しむ。その贅沢を叶えてくれるのが、ストーリア赤坂という名の、ひとつの“完成された物語”なのです。





























