-
- 賃料
- 20.5万円 ~ 26万円
-
- 種別
- マンション
-
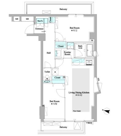
- 間取
- 2LDK
-
- 所在地
- 東京都新宿区南町 神楽坂南町ハウス
- 交通
- 都営大江戸線 牛込神楽坂駅 徒歩4分
JR総武線 飯田橋駅 徒歩10分
JR中央線 市ケ谷駅 徒歩13分
東京メトロ東西線 神楽坂駅 徒歩13分
-
- 同じエリアの物件を探す
- 新宿区の高級賃貸物件一覧
東京の高級賃貸物件一覧
- 同じ路線・駅の物件を探す
- 市ケ谷駅周辺の高級賃貸物件一覧
飯田橋駅周辺の高級賃貸物件一覧
牛込神楽坂駅周辺の高級賃貸物件一覧
神楽坂駅周辺の高級賃貸物件一覧
物件詳細
|
|
|
|
|
|
|
※各種情報と現状に差異がある場合は、現状優先となります。
※取り扱い不動産会社が複数ある場合は、住宅保険等、一部条件が異なる場合もございますので、取扱店舗までご確認下さいませ。
周辺地図
入居可能な部屋
物件問い合わせ先
神楽坂南町ハウスの特徴
駅近・複数路線利用可能な交通利便性
神楽坂南町ハウスは、都心屈指の交通利便性を誇る立地が大きな魅力です。最寄りの都営大江戸線「牛込神楽坂」駅までは徒歩4分、加えてJR中央・総武線、東京メトロ東西線・有楽町線・南北線・都営大江戸線が交わる「飯田橋」駅へも徒歩8〜10分と、複数路線の利用が可能です。新宿・六本木・丸の内など主要ビジネスエリアへのアクセスも良好で、通勤や外出のストレスが軽減されます。また、神楽坂駅へも徒歩圏内にあり、情緒あふれる坂道を抜けて日常的に神楽坂の風情を楽しむこともできます。都心中心部ながらも通り沿いは比較的静かで、車通りも穏やか。朝夕の時間帯でも人の流れが緩やかで、落ち着いた住環境が維持されています。徒歩圏にはスーパー、コンビニ、カフェ、郵便局などの生活施設も点在しており、生活利便性と快適な居住性を両立した希少なロケーションといえるでしょう。
デザイン性・建築コンセプト
神楽坂南町ハウスは、著名建築家・関太一氏(アトリエ・ヒューテック)による設計で、細部まで意匠性にこだわったデザイナーズマンションです。外観は白とグレーを基調に、周囲の伝統的な街並みに調和しながらも現代的な美を際立たせています。エントランスは凛とした静けさを纏い、住まう人を迎える上質な空間構成。共用部は内廊下設計でプライバシー性を高め、雨の日も快適に移動できる設計が施されています。住戸内は木の温もりと洗練されたモノトーンが融合した落ち着きあるデザイン。障子や間接照明など、和の要素を取り入れた空間は神楽坂という土地の文化を象徴しています。設備面では床暖房、食洗機、浴室乾燥機など機能性も充実し、外観の美しさだけでなく、暮らしやすさをも両立。デザインと実用性、そして地域性が調和した建築作品と呼ぶにふさわしい完成度を誇ります。
築年・構造・戸数
2010年12月竣工の神楽坂南町ハウスは、築十数年を経てもなお高い人気を維持しているプレミアムレジデンスです。構造は鉄筋コンクリート造(RC造)地上6階・地下1階建て。堅牢な構造体が生む高い耐震性と遮音性は、静寂を求める住まい手に最適です。総戸数は49戸で、プライバシーを重視した低層スタイルの設計が採用されています。共用部分や外観のメンテナンスも行き届いており、築年を感じさせない美観を保っています。施工時の基礎構造や断熱設計も優れており、夏の熱気や冬の冷気を抑制し、四季を通じて快適な住環境を維持。各住戸には遮音性の高い二重サッシが採用されており、神楽坂の中心でありながら驚くほど静謐な空気が流れています。また、入居者の層も上質で、単身のプロフェッショナル層からカップル・ディンクスまで幅広く支持されています。
間取りのバリエーションと賃料帯(目安)
神楽坂南町ハウスでは、1Rから2LDKまでの豊富な間取りが揃い、単身からファミリーまで柔軟に対応しています。代表的なプランとして、約40㎡前後の1LDKタイプは開放的なリビングとコンパクトながら機能的なキッチンが特徴で、賃料は17〜19万円前後。50㎡台の2LDKはバルコニー付きで、LDKが広く取られ、23万円前後が目安。さらに70㎡超の上層階住戸ではメゾネット仕様の設計もあり、天井高や採光性を活かした空間演出が魅力です。賃料は29万円前後が相場となっています。全戸にエアコン・床暖房・追焚機能付き浴室・IHシステムキッチンを備え、ワンランク上の暮らしを実現。部屋ごとに内装テイストが異なる住戸もあり、住まう人のライフスタイルに合わせた選択肢が豊富です。間取りの巧妙なレイアウトと居心地の良さは、神楽坂という特別な土地にふさわしい質の高さを感じさせます。
静かな住環境・防音性
神楽坂南町ハウスの最大の魅力のひとつが、都心にありながら驚くほど静かな住環境です。物件の立地は牛込神楽坂駅近くでありながら、大通りから一本入った閑静な住宅地「南町」に位置し、周囲は落ち着いた邸宅街が広がります。鉄筋コンクリート造に加え、壁厚設計や遮音性に優れたサッシを採用しており、外部の生活音をほとんど感じさせません。室内に一歩足を踏み入れれば、外の喧騒とは一線を画す穏やかな時間が流れます。共用廊下も内廊下構造となっており、雨風や騒音の影響を受けにくく、快適な動線を確保。窓を開けても小鳥の声や風の音が心地よく届くほどの静寂が保たれています。加えて、建物全体に防犯カメラやオートロックが設置され、安全性と安心感も確保。静かさと安心、そして上質さが融合した、まさに「大人のための隠れ家」と呼ぶにふさわしい住環境がここにあります。
神楽坂南町ハウスの物件設備
専有部の設備
神楽坂南町ハウスの専有部は、機能性と美しさを兼ね備えた住空間を追求しています。全住戸に設けられたシステムキッチンは、IHクッキングヒーターを採用し、熱効率と安全性を両立。さらに一部住戸では食洗機を標準装備しており、日々の家事を効率的にサポートします。浴室には追い焚き機能や浴室換気乾燥機を備え、快適なバスタイムを演出。梅雨時や冬場でも衣類乾燥に重宝する設備です。トイレは温水洗浄便座付きで衛生的かつ快適。床暖房が設置された住戸では、冬場でも足元から柔らかく室内を温め、冷えを感じさせません。また、壁や床材には防音性と質感に優れた素材が使われ、上質な静けさを保ちつつ長く住まうにふさわしい耐久性を確保しています。さらに全戸で光回線インターネットへの対応が可能で、在宅ワークや動画視聴など現代的なライフスタイルにも柔軟に対応。デザイン性の高い空間と最新設備の融合が、神楽坂南町ハウスの真価を支えています。
- システムキッチン(IHクッキングヒーター)
- 食器洗浄乾燥機(住戸により設置)
- 追い焚き機能付きバス・浴室乾燥機
- 床暖房(リビングエリアなど)
- 温水洗浄便座
- エアコン・24時間換気システム
- 光回線インターネット対応・BS/CS受信可
- TVモニター付きインターホン
共有部の設備
共用部には、都心生活を支える高水準の設備が整備されています。エントランスはオートロックシステムを採用し、防犯カメラによる監視体制を強化。住まう人の安全を最優先に設計されています。宅配ボックスが設置されており、不在時でも荷物を受け取れるため、忙しいビジネスパーソンにも利便性が高い仕様です。エレベーターは静音・高性能タイプで、移動のストレスを軽減。敷地内には24時間利用可能なゴミ置き場を設け、都心にありながらも生活動線の快適さを重視しています。さらに駐輪場・バイク置き場を完備し、近隣エリアへのアクセスもスムーズ。屋内型の内廊下設計が採用されており、ホテルのような落ち着いた雰囲気とプライバシーを確保します。加えて、建物全体は定期的な清掃と点検が行き届き、築年を感じさせない清潔感が保たれています。共用空間の静謐さと上質さは、まさに神楽坂の邸宅にふさわしい洗練された印象を与えます。
- オートロック・防犯カメラシステム
- 宅配ボックス・メールコーナー
- エレベーター(静音タイプ)
- 敷地内ゴミ置き場(24時間利用可能)
- 駐輪場・バイク置場
- 屋内型内廊下設計
- 駐車場(空き状況要確認)
- 共用部定期清掃・管理体制充実
サービス
神楽坂南町ハウスは、三井不動産グループの「Resident First」が管理を手がけており、入居者が安心して快適に暮らせるように多彩なサポートサービスが提供されています。オンラインでの入居手続きや契約更新、故障対応の受付など、スマートなデジタルサポート体制が整っているほか、入居者専用の相談窓口も用意。緊急時には24時間のコールセンター対応でトラブルを迅速に解決します。建物清掃や設備点検は定期的に実施され、常に美観と安全性を保つ管理品質の高さも大きな魅力です。また、引越し時のサポートや住み替え相談など、ライフステージに合わせたアドバイスを受けることも可能。さらに、三井グループ特有のネットワークを活かした各種サービス(家事代行、設備メンテナンスなど)を利用できる点も、他の賃貸物件との差別化要素となっています。神楽坂南町ハウスは、単なる住まいではなく「安心と品格を備えたライフプラットフォーム」としての価値を確立しています。
- Resident Firstによる総合管理体制
- 24時間緊急コールセンター
- オンライン入居手続き・更新サービス
- 定期点検・清掃・美観維持
- ライフサポート・家事代行サービス(オプション)
防犯・セキュリティ
セキュリティ面も非常に高い水準で設計されており、都心での暮らしに安心をもたらします。建物のエントランスにはオートロックと防犯カメラが設置され、24時間体制で監視。さらに各住戸にはTVモニター付きインターホンを備え、訪問者の確認を視覚的に行えます。玄関扉にはディンプルキーとダブルロックを採用し、ピッキングなどの不正侵入を防止。内廊下設計により外部からの視線を遮り、居住者のプライバシーも確保されています。夜間は共用部照明が自動点灯し、防犯性と快適性を両立。これらの仕組みが相まって、女性の単身者や小さなお子様を持つ家庭でも安心して暮らせる環境を実現しています。さらに、入居後もResident Firstが緊急対応を行い、トラブル時の心強いサポートを提供。防犯と快適性を両立させた設計思想は、神楽坂南町ハウスが「都心の静寂」を守り抜くための確固たる基盤といえるでしょう。
- オートロック・防犯カメラ
- ディンプルキー・ダブルロック玄関
- 内廊下構造によるプライバシー確保
- TVモニター付きインターホン
- 24時間セキュリティ監視体制
- Resident Firstによる緊急対応
神楽坂南町ハウスの周辺環境
交通アクセス
神楽坂南町ハウスの立地は、東京都心の中でも屈指のアクセス利便性を誇ります。最寄り駅の都営大江戸線「牛込神楽坂」駅まで徒歩4分という近さに加え、JR総武・中央線および東京メトロ東西線・有楽町線・南北線・都営大江戸線が交わる「飯田橋」駅へも徒歩8〜10分の距離。複数路線の利用により、新宿・渋谷・六本木・大手町・銀座といった主要エリアへのアクセスがいずれも30分圏内で完結します。また、東西線を使えば早稲田・高田馬場方面へも直通で通学が可能で、ビジネスにも学業にも便利な立地です。神楽坂駅へも徒歩10分強でアクセスでき、坂道を上りながら風情ある街並みを日常的に楽しめるのも魅力。タクシー利用時にも都心中心部まで短時間で到達でき、通勤や外出のストレスが少ない環境です。さらに、幹線道路からやや奥まった立地にあるため交通騒音も抑えられ、利便性と静穏性を兼ね備えた理想的なロケーションといえるでしょう。
- 都営大江戸線「牛込神楽坂」駅 徒歩4分
- JR中央・総武線「飯田橋」駅 徒歩8〜10分
- 東京メトロ東西線「神楽坂」駅 徒歩10〜11分
- 東京メトロ有楽町線・南北線「飯田橋」駅 徒歩8分
- 主要エリア(新宿・丸の内・六本木・銀座)まで約15〜30分圏内
飲食・商業施設
神楽坂南町ハウス周辺は、日常生活に必要な利便施設と、神楽坂らしい美食文化が共存するエリアです。徒歩5分圏内には「セブンイレブン新宿岩戸町店」「ローソン牛込神楽坂駅前店」などのコンビニエンスストアが点在し、日用品の買い物にも困りません。食料品は「肉のハナマサ 市ヶ谷店」や「まいばすけっと 牛込神楽坂駅前店」が利用でき、スーパーも充実。ドラッグストアや郵便局、銀行も徒歩圏内に揃っています。一方で、神楽坂といえば「食の街」としての顔も持ち、石畳の路地には老舗料亭や和食の名店、フレンチ・イタリアンの隠れ家的レストランが並びます。近年はカフェやベーカリー、ワインバーなど新しい感性を取り入れた店舗も増え、休日の散策も楽しいエリアです。飯田橋方面へ足を延ばせば「東京大神宮」や「CANAL CAFE」など、日常に潤いを添えるスポットも多数。グルメと便利さの両方を手にできる稀有なロケーションです。
- 肉のハナマサ 市ヶ谷店(徒歩約6分)
- セブンイレブン 新宿岩戸町店(徒歩約3分)
- クリエイトSD 新宿牛込北町店(徒歩約6分)
- ローソン・ファミリーマートなど多数
- 神楽坂通りの老舗料亭・カフェ・ベーカリー群
公園・自然環境
神楽坂南町ハウスは、都心にありながらも自然の息吹を感じられる環境が整っています。徒歩圏内には外濠公園があり、四季折々の風景を楽しむことができます。春には桜並木が美しく咲き誇り、夏には木陰の涼しさを感じながら散策ができる憩いのスポットです。物件の周辺には街路樹が多く、緑に包まれた通りが点在。神楽坂の情緒と調和した穏やかな空気が漂います。また、近隣の「小石川後楽園」や「新宿区立中町公園」などへもアクセスが良く、週末には軽い散歩やジョギングにも最適です。都心でありながらも、自然との距離感を保ちながら心地よい時間を過ごせるのは、この立地ならではの贅沢。夜は外濠沿いの街灯が水面を照らし、幻想的な夜景を演出します。神楽坂南町ハウスは、アーバンライフと自然の調和を求める人々にとって、理想的な環境が整った住まいといえるでしょう。
- 外濠公園(徒歩約13分)
- 中町公園(徒歩約5分)
- 小石川後楽園(徒歩約15分)
- 緑道・街路樹が多く自然を感じられる街並み
教育・医療施設
教育・医療環境の整備も神楽坂南町ハウスの大きな魅力です。学区内には「愛日小学校」や「牛込第一中学校」など、地域に根差した公立学校があり、通学にも安心な距離に位置しています。幼児教育施設としては「アスク新宿南町保育園」や「津久戸幼稚園」が徒歩圏内にあり、子育て世帯にとって利便性の高い環境です。また、英語教育を重視するインターナショナルスクールや私立小学校への通学も容易で、教育選択肢の幅が広いことも特筆すべき点です。医療面では「加藤医院」「神楽坂診療所」など地域密着型のクリニックが近くにあり、内科・小児科・歯科など幅広く対応。大学病院や総合病院の多い飯田橋・市ヶ谷エリアも至近で、いざという時も安心です。医療・教育ともに質が高く、生活圏内で完結できる安心感は、都心で暮らす家族にとって理想的な条件といえるでしょう。
- 愛日小学校(徒歩約7分)
- 牛込第一中学校(徒歩約10分)
- アスク新宿南町保育園(徒歩約4分)
- 津久戸幼稚園(徒歩約10分)
- 加藤医院・神楽坂診療所などクリニック多数
その他の周辺施設・地域環境
神楽坂南町ハウスは、歴史と文化、そして現代的な便利さが見事に融合した街に位置しています。徒歩圏には新宿区箪笥町特別出張所など行政機関もあり、各種手続きもスムーズ。金融機関も「三菱UFJ銀行 神楽坂支店」「みずほ銀行 飯田橋支店」などが徒歩圏に揃います。郵便局や図書館も近く、生活のインフラが整った環境です。また、神楽坂通りには老舗の商店と新進のブティックが共存し、街全体が成熟した文化を感じさせます。休日には「赤城神社」での散策や、「東京理科大学」周辺のカフェで静かな時間を過ごすことも可能。治安も良好で、夜間でも明るい通りが多く、女性の一人暮らしにも適しています。神楽坂南町ハウスがあるこの界隈は、都心で働きながらも穏やかに暮らしたい方にとって、まさに理想の生活拠点といえるでしょう。
- 箪笥町特別出張所(徒歩約7分)
- 三菱UFJ銀行 神楽坂支店(徒歩約6分)
- 飯田橋郵便局・図書館・公共施設が徒歩圏
- 赤城神社(徒歩約10分)
- 治安が良く夜道も安心な住宅街
まとめ
神楽坂南町ハウスは、都心にありながら静謐な時間が流れる「神楽坂南町」という特別な地に佇む高級レジデンスです。交通アクセスは大江戸線・JR・東京メトロの複数路線を自在に利用でき、通勤・通学・外出すべてにおいて高い利便性を誇ります。その一方で、建物が位置するのは喧騒から一歩離れた落ち着きある住宅地。神楽坂の石畳や料亭街の情緒を身近に感じながらも、プライベートな静けさが守られた環境が魅力です。室内は上質な素材と洗練されたデザインで統一され、床暖房や食洗機など先進的な設備が快適な暮らしを支えます。共用部もセキュリティや利便設備が充実しており、Resident Firstによるきめ細やかな管理体制が安心の暮らしを約束。文化と利便、静寂と美意識が見事に融合したこの邸は、都心に住まう大人たちの理想を叶える「神楽坂の隠れ家」と呼ぶにふさわしい存在です。

























